Не можешь подать объвление?
Звони. Поможем.
099-971-37-72
 
 

Фильтры поиска

фото 1 из 10

Продам 2-х поверхову квартиру 97 м2 в ЖК Меридіан. Сертифікат +

68 000 $ 

ID объявления:13206158

Обновлено:23.04.2026

 

Просмотров:258

  • Продам

Цена:
68 000 $ 
Адрес:
улица Гвардейцев-Широнинцев, Харьков, Харьковская область, Украина
Общая площадь:
97.2 м2
Площадь кухни:
30 м2
Количество комнат:
Этаж:
12 
Этажность:
13 
Район:
Северная Салтовка 
Имя:
Телефон:
Email:
Сайт:

 

Описание

Продам повноцінну двоповерхову квартиру 97 м2 в новобудові ЖК Меридіан.
Будинок зданий 2021 року. Люди проживають. Усі комунікації працюють – опалення, вода, електрика, вантажний ліфт.
Комплекс обжитий, територія доглянута, у дворі дитячий майданчик, клумби, висаджені декоративні рослини. Поруч транспорт, магазини. До метро 10 хв. на транспорті.
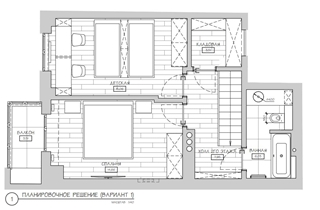
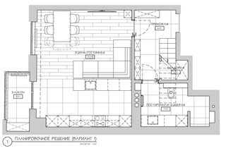
Квартира розташована на 12 та 13 поверхах. У квартирі виконані чорнові будівельні роботи: розведено електрику, труби каналізації, води, зроблено стяжку підлоги, стіни оштукатурені та підготовлені під поклейку шпалер або фарбування. Змінено радіатори опалення.
Квартира попередньо розпланована. На першому рівні заплановано передпокій з підсобним приміщенням, великий санвузол з пральною, кухня - їдальня, вітальня, засклений балкон. На другому рівні передбачені дві спальні, санвузол, балкон, вбиральня, хол. Не пропустіть можливість придбати сучасну простору квартиру в новому будинку! Усі програми розглядаємо. Телефонуйте!
Комментарии (0)
Добавить комментарий

Похожие объявления

100 сайтов
Подача в телеграм

Этот сайт использует файлы cookies. Вы можете изменить настройки cookies в своём браузере. Узнать больше.