Не можешь подать объвление?
Звони. Поможем.
099-971-37-72
 
 

Фильтры поиска

фото 1 из 10

Приміщення під аптечний склад або іншу діяльність оренда Харків

40 000 грн. 

ID объявления:13207712

Обновлено:24.04.2026

 

Просмотров:299

  • Сдам

Цена:
40 000 грн. 
Адрес:
Имя:
Андрій Вікторович
Телефон:
Сайт:

 

Описание

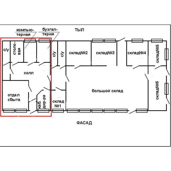
Здається приміщення аптечного складу на ХТЗ по пр-ту Олександрівському недалеко від 25 лікарні. Приміщення займає одноповерхову будівлю, має декілька входів для персоналу та два входи з парапетами під завантажувально-розвантажувальні роботи. Територія частково огороджена. Є можливість під`їзду великогабаритного тр-ту та паркування біля будівлі. До зупинок маршрутного тр-ту 1 хв. пішки. Загальна площа складає 503 м2. План приміщення складається з двох зон офісна частина та складська частина. В офісній частині 5 кабінетів та хол, обладнаний свій санвузол. Є центральне опалення, електрика та вода з каналізацією. В кабінетах встановлені кондиціонери. Можливе підключення інтернету. Можливе використання орендарем наявних меблів. В складській частині 7 робочих залів, самий великий з яких 147 м2. Вартість оренди складає 40 000 грн/міс плюс комунальні послуги. Конт.тел.: +38-050-596-53-50, +38-067-570-59-30, +38-050-4000-290 – viber. Телеграм канал: ModernEst
Комментарии (0)
Добавить комментарий

Похожие объявления

100 сайтов
Подача в телеграм

Этот сайт использует файлы cookies. Вы можете изменить настройки cookies в своём браузере. Узнать больше.